
19.04.2008, Troisdorf
Das Bauherrenmagazin "Ihr Bauplatz in..." und die Stadt Troisdorf gehen eine Zusammenarbeit für das Baugebiet "Im Schonsfeld" ein.
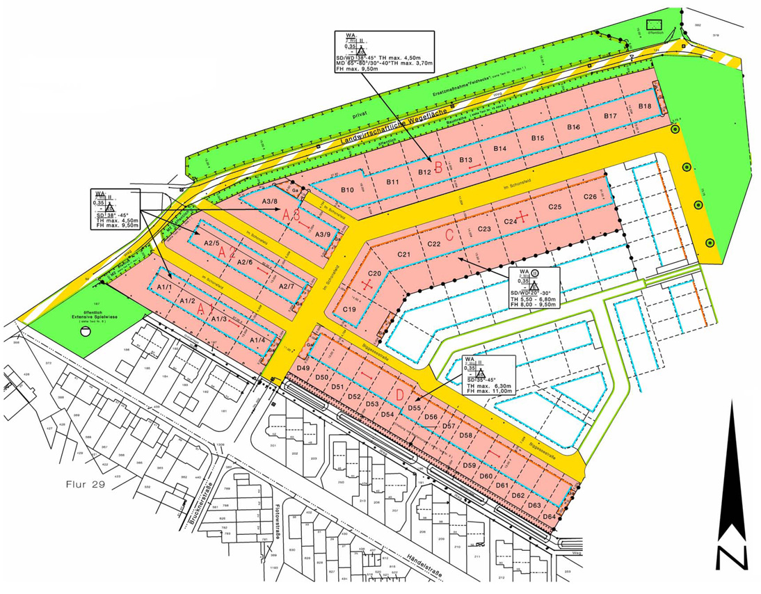
Das Neubaugebiet „Im Schonsfeld“ liegt im ruhigen und eher ländlich geprägten Troisdorfer Ortsteil Kriegsdorf, etwa einen Kilometer von der Flughafenautobahn A 59 (Anschlussstelle Spich) entfernt. Kriegsdorf gehört zu den westlichen Stadtteilen Troisdorfs und ist vier Kilometer von der Troisdorfer Innenstadt entfernt. Der S-Bahn-Haltepunkt Spich der Linien S 12 (Köln-Hennef/Au) und S 13 (Köln-Troisdorf) mit Park & Ride Parkplatz und Busanschluss befindet sich in ca. zwei Kilometern Entfernung und bietet gute Verbindungen nach Troisdorf, Siegburg, Köln und Bonn.
Mit seinen derzeit 2.650 Einwohnern ist Kriegsdorf überschaubar geblieben. Den Ortskern bildet die Reichensteinstraße mit der Kirche, dem Friedhof und dem katholischen Kindergarten. Bäckerei, Fleischerei, Friseur sowie weitere Handwerksbetriebe befinden sich im Ort selbst, ebenso wie die Dorfgaststätte. Eine neue Postagentur ist im Aufbau. Eine Grundschule befindet sich in 1,5 Kilometern Entfernung im Ortsteil Spich; ein Schulzentrum mit Haupt- und Realschule sowie einem Gymnasium befindet sich im Ortsteil Sieglar (etwa zwei Kilometer entfernt). Der Gesamtschulbesuch ist im Ortsteil Oberlar möglich.
In der Nähe liegt der Freizeitpark Haus Rott (Pferdesport, Tennis, Bogenschießen) und die Eissporthalle sowie der Rotter See mit Badestrand. Weitere Freizeitmöglichkeiten bieten eine Bowling-Arena und eine Soccer-Halle. Einkaufsmöglichkeiten in der näheren Umgebung bieten sich in den Ortsteilen Spich und Rotter See, die über Discount-, Fach- und Frischemärkte verfügen. >>>>>http://www.schonsfeld.de/
Weitere Informationen und die ausführliche Baubeschreibung und Infos rund um das Bauen und Leben in Troisdorf finden Sie in unserem Magazin "Ihr Bauplatz in Troisdorf" ab Juli 2009.

